Garten im Park, Wörthsee Deutschland
Das wunderschön gelegene Grundstück in Sichtdistanz zum Wörthsee wird geprägt durch den alten Baumbestand der umgebenden Gärten.
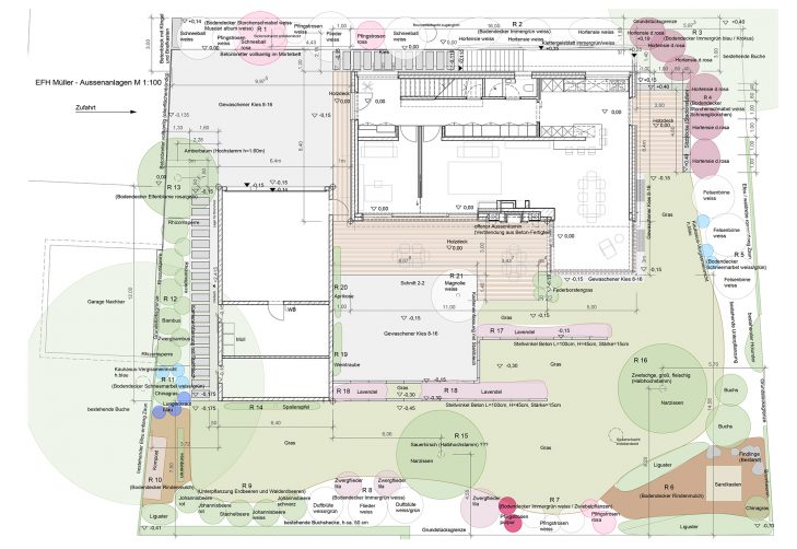
Die Aussenbereiche orientieren sich an der klaren Architektursprache des Hauses. Die grosszügig bemessenen Sitzbereiche wurden mit unterschiedlichen Materialien ausgestaltet und laden zur Erholung ein.
Bänder aus Lavendel gliedern die Rasenfläche und begrenzen den Kiesplatz.
Die harten Übergänge von Licht und Schatten bilden die Basis für das Pflanzkonzept mit waldähnlichen Unterpflanzungen und sonnenliebenden Gartenstauden.
